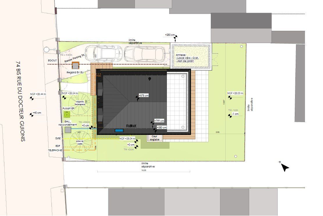
Rue du Dr Guionis Rueil Malmaison 2019
Une fois le terrain libre trouvé, cette famille a fait appel à nos services pour créer un projet qui s'intègre dans le style pavillonnaire classique sur sa façade rue, et qui se démarque en façade arrière orientée sud avec une grande terrasse, un par soleil pour un style plus moderne.




